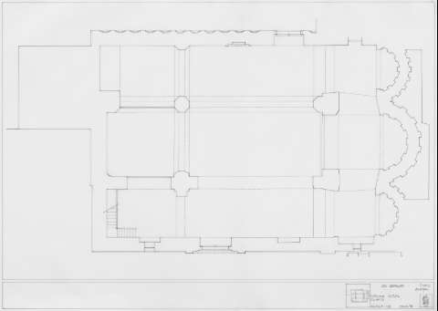
Planta de Iglesia del Santo Sepulcro (Toro)

Enlace persistente
MARCXML Dublin Core RDF MODS Cita bibliográfica BibTeX SWAP Linked Open Data / EDM 5.2.8
 
Ilustraciones y Fotos Ilustraciones Planta de Iglesia del Santo Sepulcro (Toro) - Cima González, Eduardo     Objetos digitales Objetos digitales [PDF]

Sección: Ilustraciones

Título: Planta de Iglesia del Santo Sepulcro (Toro) [Material gráfico]

Área de datos: (E-5º 23' 38.61''--E-5º 23' 38.61'' / N41º 31' 17.00'' --N41º 31' 17.00'')

Descripción física: 1 dibujo ; 6695 x 3904 mm

Materia / geográfico / evento: Iglesia del Santo Sepulcro (Toro) Icono con lupa
Iglesias Icono con lupa

Género / forma: Dibujos de arquitectura Icono con lupa

Autores secundarios: Centro de Estudios del Románico Icono con lupa

Tipo de publicación: Ilustraciones y Fotos Ilustraciones y Fotos

Derechos: The Creative Commons CCO: http://creativecommons.org/publicdomain/zero/1.0/

Ejemplares:

Fundación Santa María la Real — Signatura: za_0157 — Notas: 49800_01_084

Objetos digitales Objetos digitales
Objetos digitales [PDF] Objetos digitales [PDF]