Sección: Ilustraciones
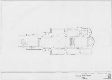
Título: Planta de Iglesia de Santa María del Castillo (Madrigal de las Altas Torres) [Material gráfico]
Área de datos: (E-4º 59' 57.28''--E-4º 59' 57.28'' / N41º 5' 21.64'' --N41º 5' 21.64'')
Descripción física: 1 dibujo ; 4251 x 1890 mm
Materia / geográfico / evento: Iglesia de Santa María del Castillo (Madrigal de las Altas Torres) ![]()
Iglesias ![]()
Género / forma: Dibujos de arquitectura ![]()
Nombre jerárquico lugar: España-Castilla y León-Ávila (Provincia)-Madrigal de las Altas Torres ![]()
Autores secundarios: Centro de Estudios del Románico ![]()
Tipo de publicación:
Ilustraciones y Fotos
Derechos: The Creative Commons CCO: http://creativecommons.org/publicdomain/zero/1.0/