Bibliotecas de Castilla y León
RSS
Iniciar sesión
Español
Inglés
Francés
Biblioteca Digital de Castilla y León
Inicio
¿Qué es?
Presentación
Contenidos
Colaboradores
Estadísticas
Participa
Catálogo
Búsqueda asistida
Listados
Autores
Títulos
Lugares
Materias
Hemeroteca
Publicaciones periódicas
Publicaciones periódicas por fecha
Colecciones
Por temas
Por tipos de materiales
Autores CyL
Novedades
Ayuda
¿Cómo buscar?
Preguntas frecuentes
Contactos
Mapa web
Búsqueda a texto completo
Está en:
›
Resultados
Obras sobre esta entidad: Iglesia de La Exaltación de la...
Ordenar por:
Título
Autor
Colección
Fecha
Relevancia
Operación:
Exportar seleccionados
Autor
Centro de Estudios del Románico
(2)
López de Prado, Luis
(2)
Materia
Dibujos de arquitectura
(2)
Iglesia de La Exaltación de la Santa Cruz (Palencia de Negrilla)
(2)
Iglesias
(2)
Período
1991 - 2005
(2)
Lengua
Español
(2)
Sección
Ilustraciones
(2)
1 al 2 de 2
Alzado norte de Iglesia de La Exaltación de la Santa Cruz (Palencia de Negrilla)
-
López de Prado, Luis
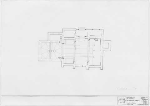
Planta de Iglesia de La Exaltación de la Santa Cruz (Palencia de Negrilla)
-
López de Prado, Luis
1 al 2 de 2
Junta de Castilla y León
Aviso legal
Privacidad
Accesibilidad