Bibliotecas de Castilla y León
RSS
Iniciar sesión
Español
Inglés
Francés
Biblioteca Digital de Castilla y León
Inicio
¿Qué es?
Presentación
Contenidos
Colaboradores
Estadísticas
Participa
Catálogo
Búsqueda asistida
Listados
Autores
Títulos
Lugares
Materias
Hemeroteca
Publicaciones periódicas
Publicaciones periódicas por fecha
Colecciones
Por temas
Por tipos de materiales
Autores CyL
Novedades
Ayuda
¿Cómo buscar?
Preguntas frecuentes
Contactos
Mapa web
Búsqueda a texto completo
Está en:
›
Resultados
Todas las obras relacionadas: España-Castilla y León...
Ordenar por:
Título
Autor
Colección
Fecha
Relevancia
Operación:
Exportar seleccionados
Autor
Centro de Estudios del Románico
(8)
González Andrés, Óscar
(8)
Materia
Dibujos de arquitectura
(8)
Iglesia de San Julián y Santa Basilisa (Rebolledo de la Torre)
(8)
Iglesias
(8)
Período
1991 - 2005
(8)
Lengua
Español
(8)
Sección
Ilustraciones
(8)
1 al 8 de 8
Alzado este de Iglesia de San Julián y Santa Basilisa (Rebolledo de la Torre)
-
González Andrés, Óscar
Alzado norte de Iglesia de San Julián y Santa Basilisa (Rebolledo de la Torre)
-
González Andrés, Óscar
Alzado oeste de Iglesia de San Julián y Santa Basilisa (Rebolledo de la Torre)
-
González Andrés, Óscar
Alzado sur de Iglesia de San Julián y Santa Basilisa (Rebolledo de la Torre)
-
González Andrés, Óscar
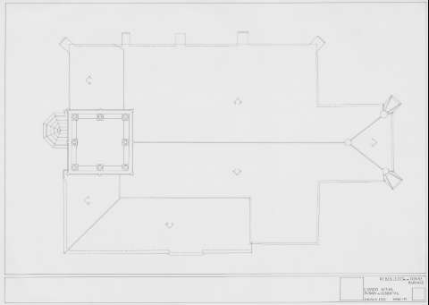
Planta de cubiertas de Iglesia de San Julián y Santa Basilisa (Rebolledo de la Torre)
-
González Andrés, Óscar
Planta de Iglesia de San Julián y Santa Basilisa (Rebolledo de la Torre)
-
González Andrés, Óscar
Sección longitudinal de Iglesia de San Julián y Santa Basilisa (Rebolledo de la Torre)
-
González Andrés, Óscar
Sección transversal de Iglesia de San Julián y Santa Basilisa (Rebolledo de la Torre)
-
González Andrés, Óscar
1 al 8 de 8
Junta de Castilla y León
Aviso legal
Privacidad
Accesibilidad