Bibliotecas de Castilla y León
RSS
Iniciar sesión
Español
Inglés
Francés
Biblioteca Digital de Castilla y León
Inicio
¿Qué es?
Presentación
Contenidos
Colaboradores
Estadísticas
Participa
Catálogo
Búsqueda asistida
Listados
Autores
Títulos
Lugares
Materias
Hemeroteca
Publicaciones periódicas
Publicaciones periódicas por fecha
Colecciones
Por temas
Por tipos de materiales
Autores CyL
Novedades
Ayuda
¿Cómo buscar?
Preguntas frecuentes
Contactos
Mapa web
Búsqueda a texto completo
Está en:
›
Resultados
Resultados
Búsqueda efectuada:
Castillo de Fuensaldaña
Ordenar por:
Título
Autor
Colección
Fecha
Relevancia
Operación:
Exportar seleccionados
Autor
Centro de Estudios del Románico
(6)
Gilardi Silva, Enrique
(1)
Materia
Castillo de Fuensaldaña
(6)
Castillos
(6)
Dibujos de arquitectura
(6)
Castillo de Fuensaldaña-Fotografías
(1)
Período
1991 - 2005
(6)
192u
(1)
Pertenece a
Valladolid : recuerdos artísticos e históricos de la provincia
(1)
Lengua
Español
(7)
Sección
Ilustraciones
(6)
Fotografías
(1)
1 al 7 de 7
Alzado este de Castillo de Fuensaldaña (Fuensaldaña)
Alzado norte de Castillo de Fuensaldaña (Fuensaldaña)
Alzado oeste de Castillo de Fuensaldaña (Fuensaldaña)
Alzado sur de Castillo de Fuensaldaña (Fuensaldaña)
Castillo de Fuensaldaña
-
Gilardi Silva, Enrique
Madrid : Linotipia Artística Española, [192-]
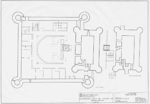
Planta de Castillo de Fuensaldaña (Fuensaldaña)
Sección longitudinal de Castillo de Fuensaldaña (Fuensaldaña)
1 al 7 de 7
Junta de Castilla y León
Aviso legal
Privacidad
Accesibilidad