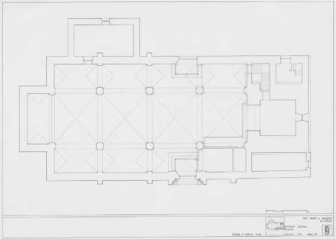
Planta de Iglesia de San Pedro Apóstol (Tamariz de Campos)

Enlace persistente
MARCXML Dublin Core RDF MODS Cita bibliográfica BibTeX SWAP Linked Open Data / EDM 5.2.8
 
Ilustraciones y Fotos Ilustraciones Planta de Iglesia de San Pedro Apóstol (Tamariz de Campos) - García González, Manuel Francisco     Objetos digitales Objetos digitales [PDF]

Sección: Ilustraciones

Título: Planta de Iglesia de San Pedro Apóstol (Tamariz de Campos) [Material gráfico]

Área de datos: (E-5º 1' 28.47''--E-5º 1' 28.47''/N41º 58' 34.97'' --N41º 58' 34.97'')

Descripción física: 1 dibujo ; 6560 x 4427 mm

Género / forma: Dibujos de arquitectura Icono con lupa

Autores secundarios: Centro de Estudios del Románico Icono con lupa

Tipo de publicación: Ilustraciones y Fotos Ilustraciones y Fotos

Derechos: The Creative Commons CCO: http://creativecommons.org/publicdomain/zero/1.0/

Ejemplares:

Fundación Santa María la Real — Signatura: va_0339 — Notas: 47815_01_004

Objetos digitales Objetos digitales
Objetos digitales [PDF] Objetos digitales [PDF]