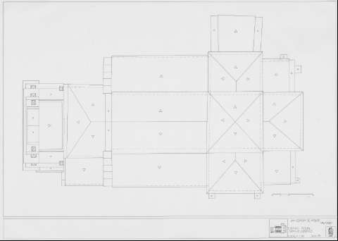
Planta de cubiertas de Iglesia de San Cipriano (San...

Enlace persistente
MARCXML Dublin Core RDF MODS Cita bibliográfica BibTeX SWAP Linked Open Data / EDM 5.2.8
 
Ilustraciones y Fotos Ilustraciones Planta de cubiertas de Iglesia de San Cipriano (San Cebrián de Mazote)     Objetos digitales Objetos digitales [PDF]

Sección: Ilustraciones

Título: Planta de cubiertas de Iglesia de San Cipriano (San Cebrián de Mazote) [Material gráfico]

Área de datos: (O 5°08'48.6"--O 5°08'48.6"/N41°40'51.9"--N41°40'51.9")

Descripción física: 1 dibujo ; 819 x 583 mm

Género / forma: Dibujos de arquitectura Icono con lupa

Autores secundarios: Centro de Estudios del Románico Icono con lupa

Tipo de publicación: Ilustraciones y Fotos Ilustraciones y Fotos

Derechos: The Creative Commons CCO: http://creativecommons.org/publicdomain/zero/1.0/

Ejemplares:

Fundación Santa María la Real — Signatura: va_0268

Objetos digitales Objetos digitales
Objetos digitales [PDF] Objetos digitales [PDF]