Sección: Ilustraciones
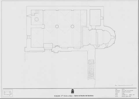
Título: Planta de Iglesia de Nuestra Señora de la Asunción (Bahabón de Esgueva) [Material gráfico]
Autor: Gómez López, Benigno ![]()
Área de datos: (E-3º 43' 44.33''--E-3º 43' 44.33'' / N41º 51' 45.85'' --N41º 51' 45.85'')
Descripción física: 1 dibujo
Materia / geográfico / evento: Iglesia de Nuestra Señora de la Asunción (Bahabón de Esgueva) ![]()
Iglesias ![]()
Género / forma: Dibujos de arquitectura ![]()
Nombre jerárquico lugar: España-Castilla y León-Burgos (Provincia)-Bahabón de Esgueva ![]()
Autores secundarios: Centro de Estudios del Románico ![]()
Tipo de publicación:
Ilustraciones y Fotos
Derechos: The Creative Commons CCO: http://creativecommons.org/publicdomain/zero/1.0/